Skip to content
Suomi – Suomi
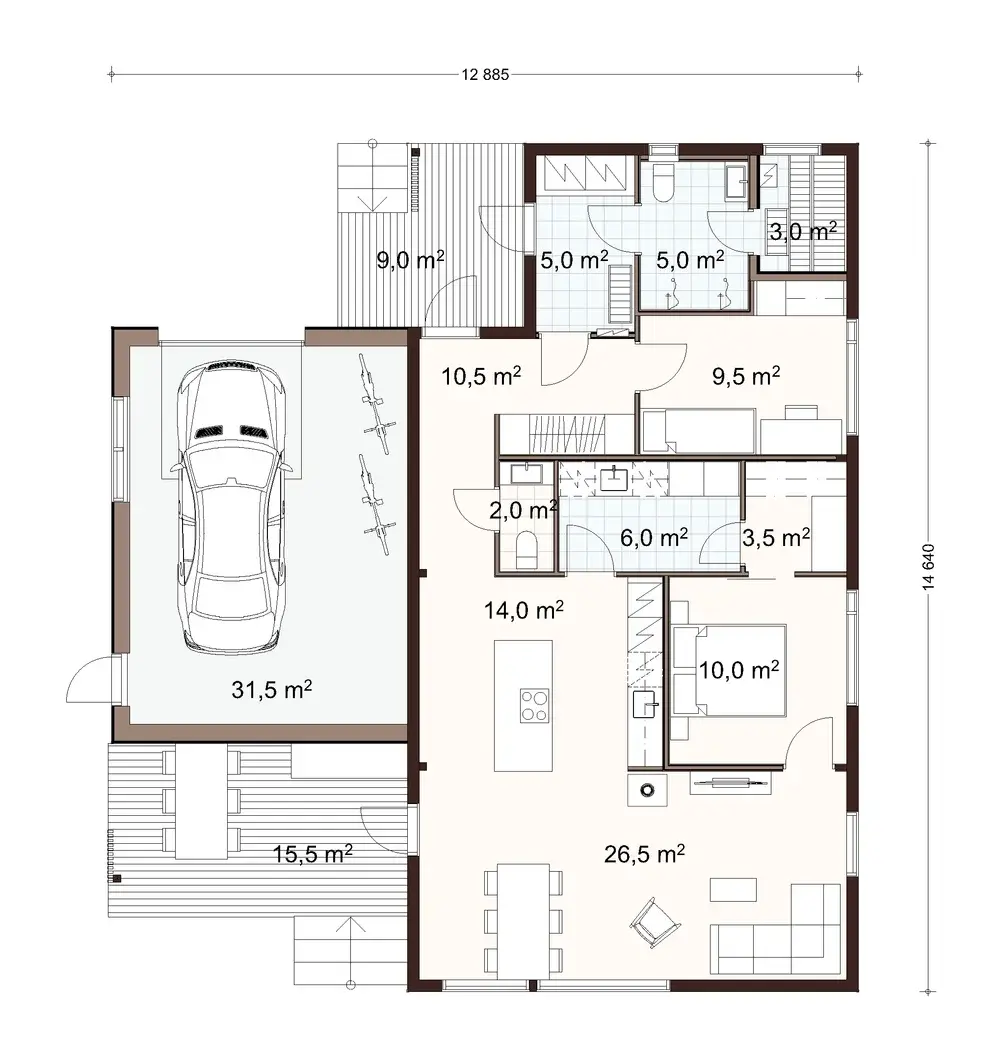
Mallisto / Residential house / Silmu 144 3A

Silmu 144 3A

98.5 m2 net / 144 m2 gross

Variants
Silmu 144 3A
Silmu 144 3A Silmu 144 3A
Description

Honka Silmu muuttuu elämäsi mukana. Tämän valoisan ja modernin talomallin nerokkuus piilee sen muuntojoustavuudessa. Perusmuotoista rakennusta voi laajentaa kolmella eri tavalla: autokatoksella, viherhuoneella tai makuuhuonepainotteisella ratkaisulla. Talomalli tarjoaa myös sivuasuntomahdollisuuden luoden tilan esimerkiksi nuorelle perheenjäsenelle tai vanhukselle.

Sisäkuvat ovat visualisointeja Silmu 144 2A -mallista ja ulkokuvat ovat visualisointeja Silmu 144 2A ja 108 1A -malleista.

Overview
Name
Silmu 144 3A
Floor area
144 m2
Net area
98.5 m2
Floors
1
Bedrooms
2
Bathrooms
1
WCs
2
Honka ID
50168

Floor plan

Variants
Silmu 144 3A floor plan