Skip to content
Suomi – Suomi
Mallisto / Residential house / Taimi 152 1A

Taimi 152 1A

138 m2 net / 152 m2 gross

Variants
Taimi 152 1A
Taimi 152 1A Taimi 152 1A
Description

Näyttävä Honka Taimi taipuu niin omakotitaloksi kuin ympärivuotiseksi vapaa-ajan kodiksi. Talon sydämestä löytyy suuri ja valoisa ruokakomerollinen tupakeittiö, jonka komea ikkunaseinä tuo luonnon lähelle. Voit valita ikkunaseinään joko perinteiset Maisema-ikkunat tai modernit MaisemaPlus -ikkunat omien mieltymystesi mukaan. Laajentamismahdollisuudet erillisellä saunarakennuksella ja kesäkeittiöllä tuovat lisäulottuvuuksia kodin käyttöön, tarjoten tilaa esimerkiksi ylimääräiselle vieras- tai työhuoneelle.

Sisäkuvat on visualisointeja Taimi 152 1A mallista. Ulkokuvat on visualisointeja Taimi 130 ja 152 -mallista Maisema ja MaisemaPlus ikkunoilla.

Overview
Name
Taimi 152 1A
Floor area
152 m2
Net area
138 m2
Floors
1
Bedrooms
4
Bathrooms
2
WCs
2
Honka ID
50172

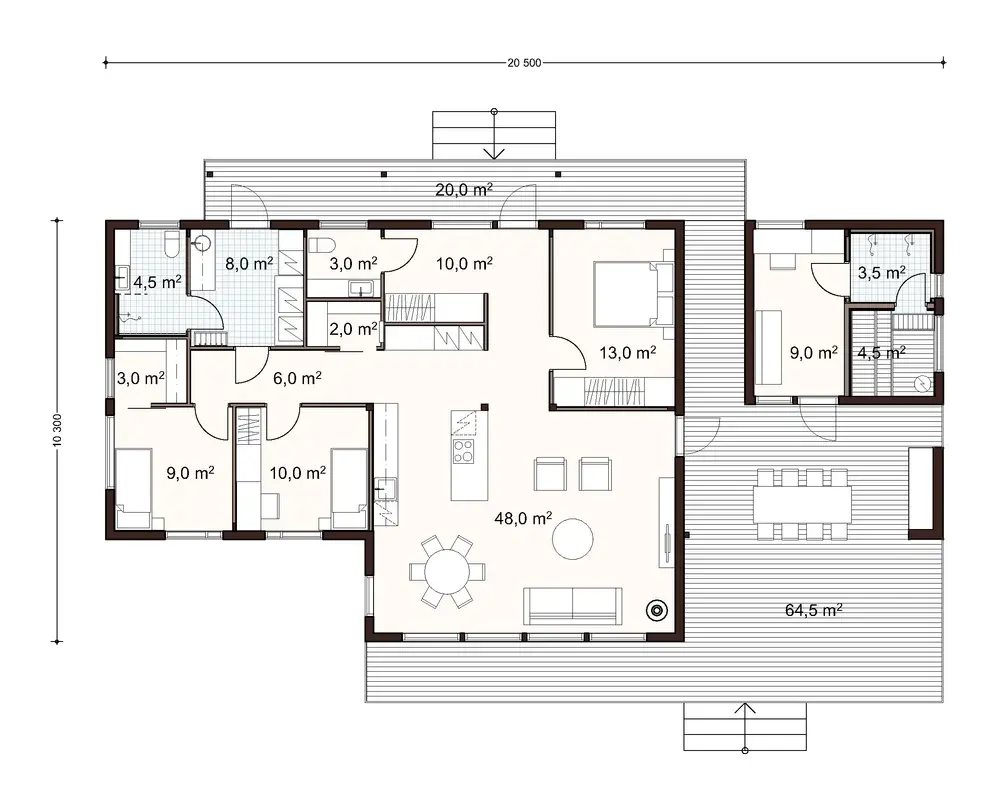
Floor plan

Variants
Taimi 152 1A floor plan