Skip to content
Suomi – Suomi
Mallisto Residential house Taivas 696 1A

Taivas 696 1A

Taivas 696 1A
Taivas 696 1A
Description

Honka Taivasreaches for the sky. Honka Taivas is one of our most imposing design creations. In Finnish, the word ‘taivas’ means ‘sky’, which is reflected in the model’s multifaceted architecture that allows for bright and open spaces.

The ground floor of the log building is made of stone and includes a sauna area with a large swimming pool. The main floor houses a high and impressive living room, dining area and kitchen. From the kitchen you can enter a glazed outdoor terrace. On the main floor you also will find a beautiful entrance hall, bedrooms and a family room. The master bedroom with the necessary extra facilities, other bedrooms and a lounge area are located upstairs.

Overview
Name
Taivas 696 1A
Floor Area
695.5 m²
Apartment Area
586 m²
Honka ID
50403

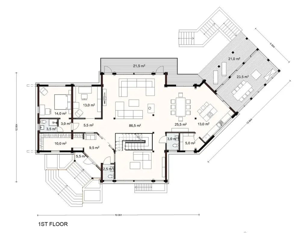
Floor plan

Variants
Taivas 696 1A
Taivas 696 1A floor plan
Taivas 696 1A floor plan
Taivas 696 1A floor plan