Skip to content
Suomi – Suomi
Mallisto Residential house Toivio 140 1A

Toivio 140 1A

Variants
Toivio 140 1A Toivio 156 1A
Toivio 140 1A
Toivio 140 1A
Description

Honka Toivio -mallissa yhdistyvät kauneus ja toimivuus. Erityisesti lapsiperheiden arjen sujuvuutta ajatellen on syntynyt talomalli, jossa on niin väljyyttä kuin valoa sekä omaa rauhaa jokaiselle perheenjäsenelle. L:n mallinen pohjaratkaisu suo yksityisyyttä myös pihan puolelle. Luonnonvaloa on tarjolla talon kaikissa huoneissa suurista ikkunoista.

Toivio on tyylikäs ja kestävä talomalli, joka mukautuu asukkaan elämäntilanteen mukaan vaivatta. Ilmettä julkisivuun tuo katettu terassi olohuoneen yhteydessä. Toivio sopii erinomaisesti niin perinteiselle pientaloalueelle kuin luonnonläheiseen maalaismaisemaankin.

Overview
Name
Toivio 140 1A
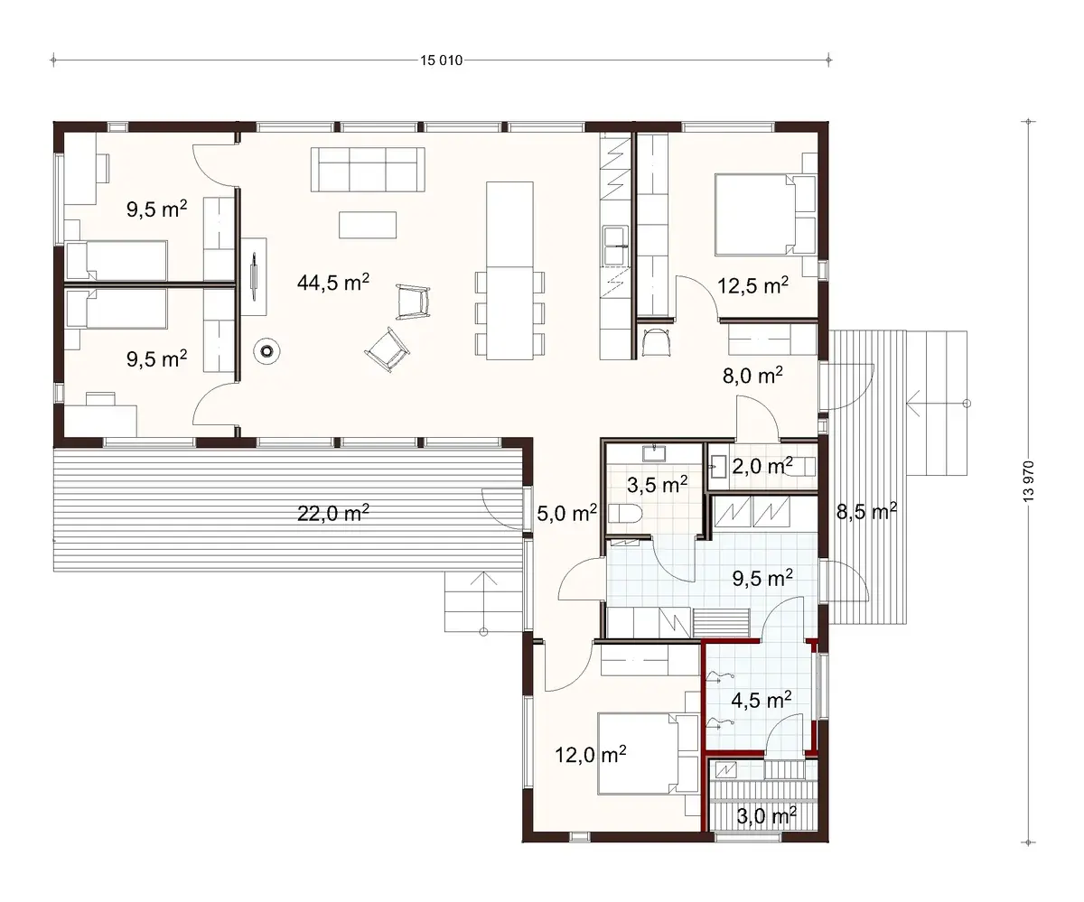
Floor Area
140 m²
Apartment Area
128.5 m²
Honka ID
50113

Floor plan

Variants
Toivio 140 1A Toivio 156 1A
Toivio 140 1A floor plan
Toivio 140 1A facade