Skip to content
Suomi – Suomi
Mallisto Residential house Touko 120 2A

Touko 120 2A

Variants
Touko 120 2A
Touko 120 2A
Description

Honka Touko on näyttävä hirsitalounelma, jonka komea päätyikkuna tuo maiseman estradille. Klassinen harjakatto kohtaa modernit yksityiskohdat ja mikä parasta; pohjaratkaisu on erittäin kompakti. Tässä talossa on monen haaveilema korkea olohuone, joka yhdessä isojen ikkunoiden kanssa tuo kotiin vahvan luonnonläheisen tunnelman.

Touko on talomallina monipuolinen – se soveltuu omakotitaloksi kapeallekin tontille tai vaikka ympärivuotiseksi vapaa-ajan kodiksi kauniille maisematontille. Talomallin tyyliä on helppo varioida katetulla terassilla ja ruutuikkunoilla, valitse mieleisesi kombinaatio. Touko-talomallista on myös kaksikerroksinen versio - tutustu tästä!

Overview
Name
Touko 120 2A
Floor Area
120 m²
Apartment Area
110 m²
Honka ID
50067

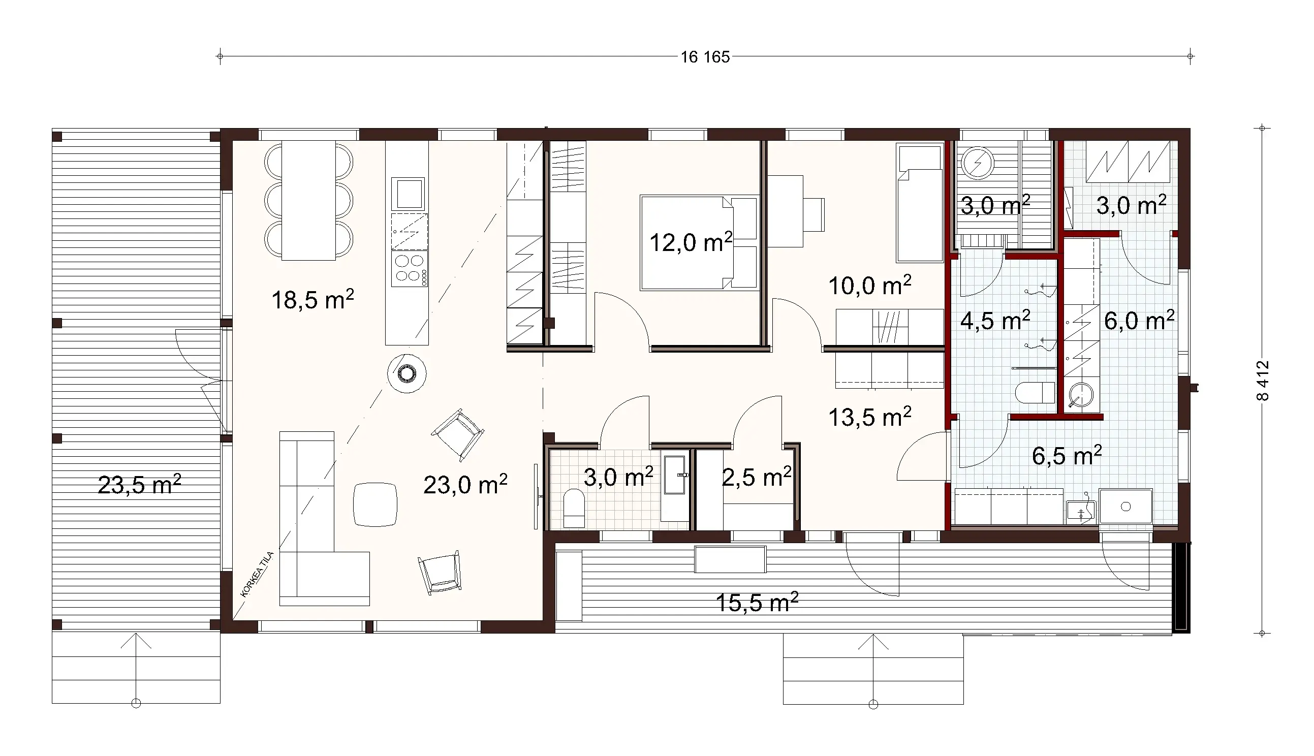
Floor plan

Variants
Touko 120 2A floor plan