Skip to content
Suomi – Suomi
Mallisto / Residential house / Touko 140 1A

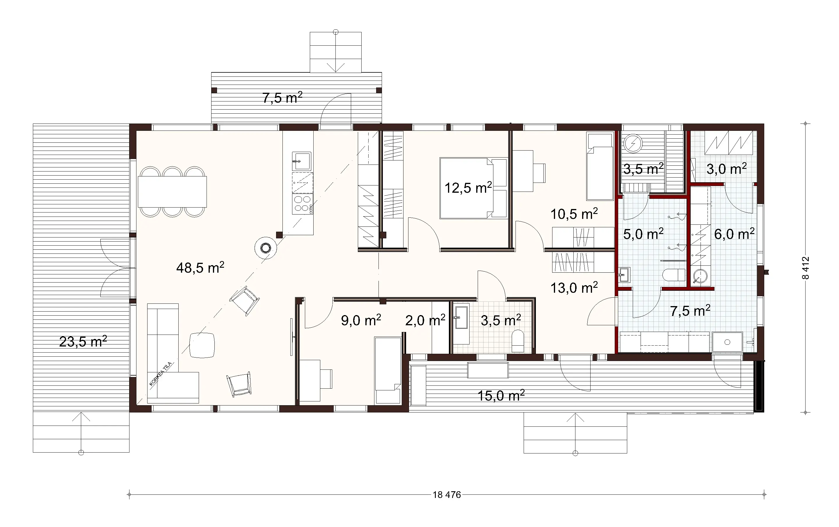
Touko 140 1A

129 m2 net / 140 m2 gross

Variants
Touko 120 1A Touko 120 2A Touko 140 1A
Touko 140 1A
Touko 140 1A Touko 140 1A
Description

Kuvat ovat visualisointeja Touko 120 1A -talomallista.

Honka Touko on näyttävä hirsitalounelma, jonka komea päätyikkuna tuo maiseman estradille. Klassinen harjakatto kohtaa modernit yksityiskohdat ja mikä parasta; pohjaratkaisu on erittäin kompakti. Tässä talossa on monen haaveilema korkea olohuone, joka yhdessä isojen ikkunoiden kanssa tuo kotiin vahvan luonnonläheisen tunnelman.

Touko on talomallina monipuolinen – se soveltuu omakotitaloksi kapeallekin tontille tai vaikka ympärivuotiseksi vapaa-ajan kodiksi kauniille maisematontille. Talomallin tyyliä on helppo varioida katetulla terassilla ja ruutuikkunoilla, valitse mieleisesi kombinaatio. Touko-talomallista on myös kaksikerroksinen versio - tutustu tästä!

Overview
Name
Touko 140 1A
Floor area
140 m2
Net area
129 m2
Floors
1
Bedrooms
3
Bathrooms
1
WCs
2
Honka ID
50068

Floor plan

Variants
Touko 120 1A Touko 120 2A Touko 140 1A
Touko 140 1A floor plan