Skip to content
Suomi – Suomi
Mallisto / Residential house / Touko 164 1A

Touko 164 1A

151.5 m2 net / 164 m2 gross

Variants
Touko 164 1A Touko 175 1A
Touko 164 1A
Touko 164 1A Touko 164 1A
Description

Honka Touko on näyttävä hirsitalounelma, jonka komea päätyikkuna tuo maiseman estradille. Suuren suosion vuoksi mallistoon on lisätty myös kaksikerroksiset kokovariaatiot. 2-kerroksinen Touko on suunniteltu sinulle, jotka arvostat upeita maisemia ja suurta tilantuntua. Klassinen harjakatto kohtaa modernit yksityiskohdat ja mikä parasta; pohja on kuitenkin toimiva ja tehokas lapsiperheen koti.

Touko on talomallina monipuolinen – valitse yksikerroksinen tai kaksikerroksinen versio lähtökohdaksi ja muokkaa perheesi tarpeisiin. Ulkonäköä voi varioida ikkunavaihtoehdoilla: ruuduilla tai ilman.

Overview
Name
Touko 164 1A
Floor area
164 m2
Net area
151.5 m2
Floors
2
Bedrooms
3
Bathrooms
2
WCs
3
Honka ID
50073

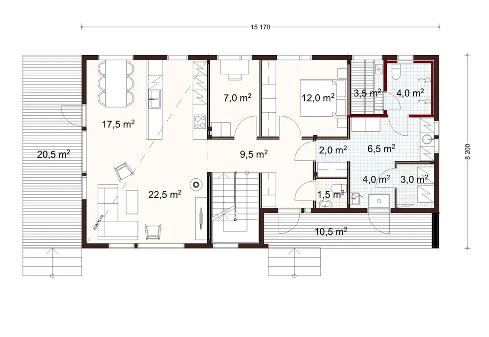
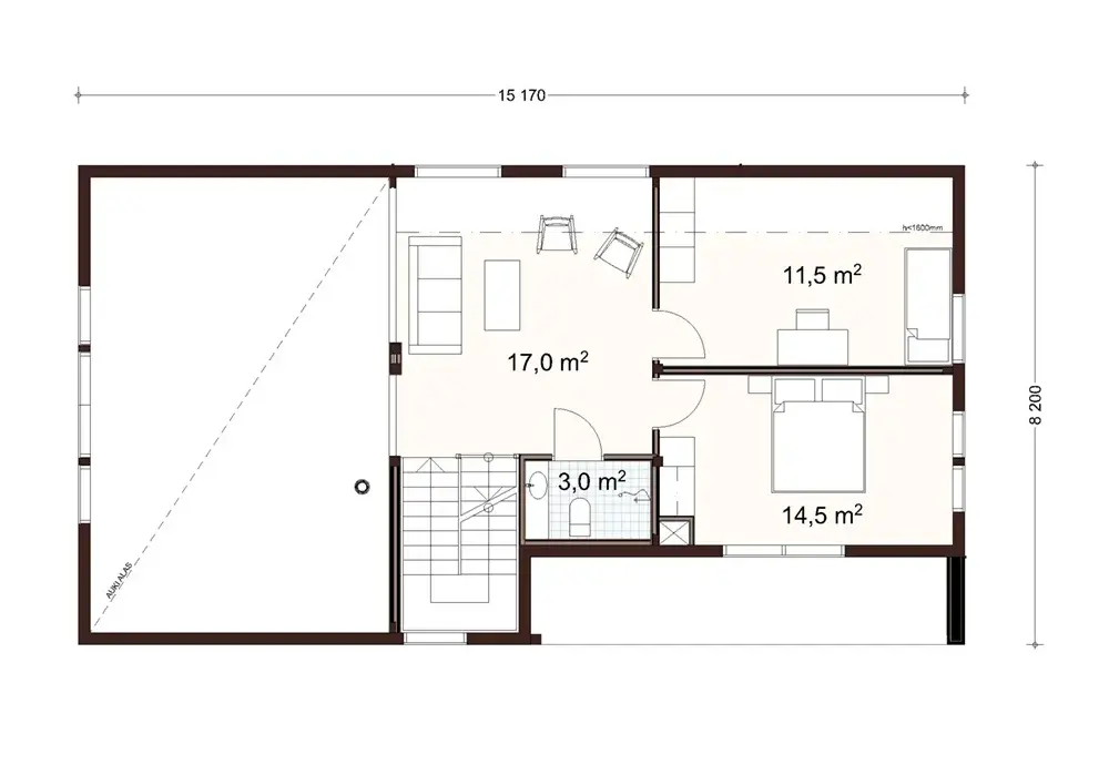
Floor plan

Variants
Touko 164 1A Touko 175 1A
Touko 164 1A floor plan
Touko 164 1A floor plan