Skip to content
Suomi – Suomi
Mallisto / Residential house / Vilja 93 1A

Vilja 93 1A

85 m2 net / 93 m2 gross

Variants
Vilja 93 1A
Vilja 93 1A Vilja 93 1A
Description

Kuvat ovat visualisointeja Vilja 122 1A -talomallista.

Honka Vilja on taloklassikko jo syntyessään – hirsikodin selkeä muotokieli ja tyylikkäät ruutuikkunat istuvat Pohjolan muuttuvaan maisemaan. Tehokkaasta pohjaratkaisusta on helppo toteuttaa unelmien hirsitalo, joka kestää aikaa.

Tässä talossa ei tarvitse huolehtia hukkaneliöistä tai säilytystilan puutteesta. Honka Vilja on kustannustehokas rakentaa, sillä kosteat tilat on keskitetty rakennuksen toiseen päätyyn. Viljasta on valmiiksi suunniteltu viisi eri kokoa – tutustu ja ihastu!


Overview
Name
Vilja 93 1A
Floor area
93 m2
Net area
85 m2
Floors
1
Bedrooms
2
Bathrooms
1
WCs
2
Honka ID
50018

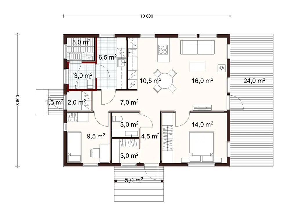
Floor plan

Variants
Vilja 93 1A floor plan