Skip to content
Suomi – Suomi
Mallisto / Residential house / Vuolu 163 1A

Vuolu 163 1A

151.5 m2 net / 162.5 m2 gross

Vuolu 163 1A
Vuolu 163 1A Vuolu 163 1A
Description

Honka Vuolu on elegantti ja moderni kaupunkikoti, jonka sydän löytyy yhtenäisestä ruokailu- ja keittiötilasta.

Neljän makuuhuoneen kodin yläkerran aulamaisesta oleskelutilasta avautuu näkymät korkeaan olohuoneeseen, jonka korkeat ikkunat antavat luonnonvalon tulvia sisätilaan. Selkeälinjaisen rakennuksen molemmilta puolilta löytyy katettua terassia ja takapihan kruununa koko rakennuksen levyinen parveke.

Overview
Name
Vuolu 163 1A
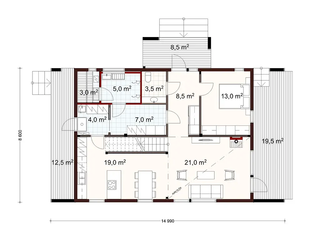
Floor area
162.5 m2
Net area
151.5 m2
Floors
2
Bedrooms
4
Bathrooms
2
WCs
2
Honka ID
50091

Floor plan

Variants
Vuolu 163 1A
Vuolu 163 1A floor plan