Skip to content
Suomi – Suomi
Mallisto Residential house Wood Form 220 1A

Wood Form 220 1A

Wood Form 220 1A
Wood Form 220 1A
Description

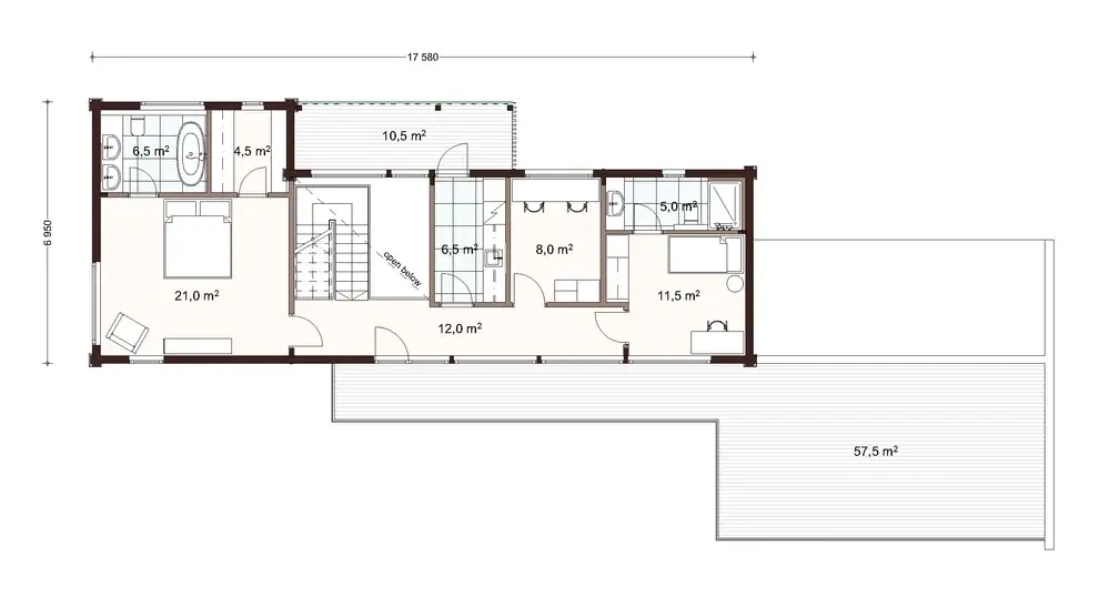
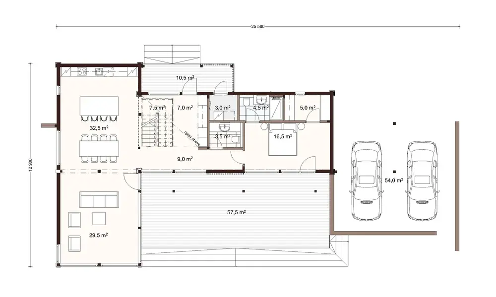
Honka Wood Form captivates with its clear architecture and light-flooded layout. This modern two-storey grand design features a spacious entrance overlooking a magnificent atrium-style terrace area. The kitchen, dining area and bright living room are in a separate wing, with convenient access to the terrace. On the other side of the entrance is a peaceful master bedroom or guest bedroom with en-suite bathroom and walk-in closet. The bright staircase leads to the hallway, where you will find the master bedroom with an en-suite bathroom and walk-in closet, a smaller bedroom with a bathroom and a study. The hallway also leads to the large terrace and a utility room with its own balcony. Carports for two cars crown the functionality of the house.

Overview
Name
Wood Form 220 1A
Floor Area
220 m²
Apartment Area
198 m²
Honka ID
50544

Floor plan

Variants
Wood Form 220 1A
Wood Form 220 1A floor plan
Wood Form 220 1A floor plan