Skip to content
Suomi – Suomi
Mallisto Residential house Wood Rise 286 1A

Wood Rise 286 1A

Wood Rise 286 1A
Wood Rise 286 1A
Description

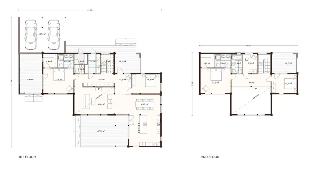
Honka Wood Rise is a modern interpretation of a dignified log mansion. The impressive entrance leads to a spacious hallway, large master bedroom and guest bedroom. The sumptuous master bedroom features an en-suite bathroom and walk-in closet and a sheltered glazed terrace. The high living room is flooded with light and creates an impressive atmosphere. The spacious kitchen with dining area and terrace make it easy to accommodate even large groups. Upstairs, there is another spacious bedroom with an en-suite bathroom and walk-in closet, plus a small study and a separate bedroom with its own balcony. Carports for two cars complete the house.

All Honka designs can be tailored to your specific needs. Honka Wood Rise is part of our Woodism concept – inspiring architecture, timeless interior style and unique product solutions you cannot get anywhere else.

Overview
Name
Wood Rise 286 1A
Floor Area
285.5 m²
Apartment Area
260 m²
Honka ID
50545

Floor plan

Variants
Wood Rise 286 1A
Wood Rise 286 1A floor plan