Skip to content
Suomi – Suomi
Mallisto / Hirsimökit ja -huvilat / Soihtu 70 7A

Soihtu 70 7A

64.5 m² / 69.5 m²

Variantit
Soihtu 70 7A
Soihtu 70 7A Soihtu 70 7A
Kuvaus

Kuvat ovat visualisointeja Soihtu 70 2A -mallista

Perinteistä mökkitunnelmaa huokuva Soihtu on viihtyisä ja mutkaton kestosuosikkimallimme.

Soihdusta on useampia kokovaihtoehtoja ja tämä malli on toiminut monen vapaa-ajan huvilan suunnittelun pohjana. Soihdun aikaa kestävä ulkomuoto ja kompakti tilasuunnittelu yhdistyvät luontevasti isoon kolmiomaiseen ikkunaseinään, joka antaa modernin silauksen huvilan perinteikkääseen ilmeeseen. Suuret ikkunat valaisevat Soihtu-mökin olohuoneen ja ruokailutilan. Kuistin voi halutessaan lasittaa, jolloin ulkotiloista voi nauttia pitkälle syksyyn.

Yleiskatsaus
Nimi
Soihtu 70 7A
Pinta-ala, brutto
69.5 m2
Pinta-ala, netto
64.5 m2
Kerrokset
1.5
Makuuhuoneet
2
Kylpyhuoneet
1
WC:t
1
Honka-tunniste
17227

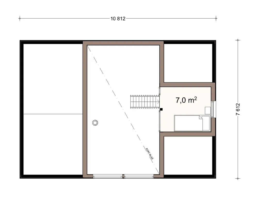
Pohjakuvat

Variantit
Soihtu 70 7A floor plan
Soihtu 70 7A floor plan

Starter block heading

Tips for first-time builders

Lorem ipsum dolor sit amet, consectetur adipiscing elit, sed do eiusmod tempor incididunt ut labore et dolore magna.

Read more

Tips for first-time builders

Lorem ipsum dolor sit amet, consectetur adipiscing elit, sed do eiusmod tempor incididunt ut labore et dolore magna.

Read more

Tips for first-time builders

Lorem ipsum dolor sit amet, consectetur adipiscing elit, sed do eiusmod tempor incididunt ut labore et dolore magna.

Read more
pineo-alue-2025-004-1536x1097

Order a free catalog

Explore our collections by browsing the catalog and pick up inspiring ideas for building your own log home or cabin.