Skip to content
Suomi – Suomi
Mallisto / Hirsimökit ja -huvilat / Wood Haven 69 1A

Wood Haven 69 1A

64 m² / 68.5 m²

Variantit
Wood Haven 69 1A Wood Haven 69 2A
Wood Haven 69 1A
Wood Haven 69 1A Wood Haven 69 1A
Kuvaus

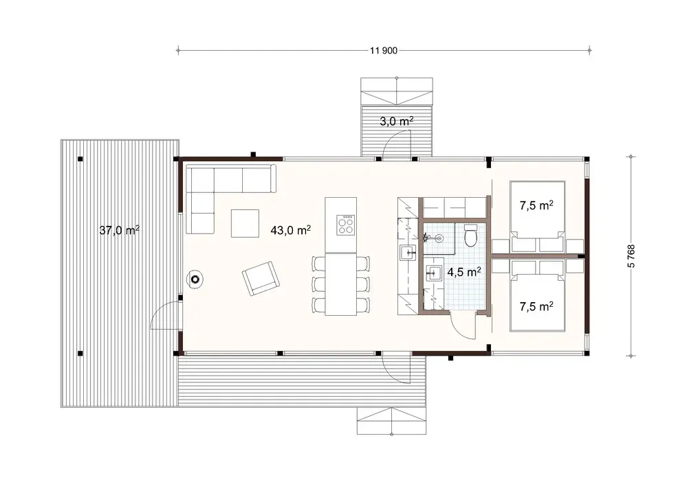
Honka Wood Haven on tehokas maisemahuvila, joka on suunniteltu pysähtymistä ja luontokokemusta varten. Avarasta oleskelutilasta avautuvat vaikuttavat panoraamanäkymät kolmeen eri suuntaan, ja yhtenäinen keittiö-ruokailu-olohuone on suunniteltu yhdessäololle. Hirsihuvilan design on selkeä: neliöt on sijoitettu oleskeluun ja maisemasta nauttiminen ovat etusijalla. Kaksi kompaktia makuutilaa suurin ikkunoin tarjoaa levollisen paikan vetäytyä. Valoisa eteistila ja kylpyhuone tuovat mukavuutta vapaa-aikaan. Hirsimökin laajat, katetut terassit ovat kuin toinen olohuone ulkona.

Huvilamalli on saatavilla eri kattovaihtoehdoilla ja pohjapiirustusta on helppo muokata tarpeidesi sekä tonttisi mukaan. Honka Wood Haven on osa Woodismi-konseptiamme – selkeälinjainen design, aikaa kestävä sisustustyyli ja uniikit tuoteratkaisut, joita et saa muualta.

Yleiskatsaus
Nimi
Wood Haven 69 1A
Pinta-ala, brutto
68.5 m2
Pinta-ala, netto
64 m2
Kerrokset
1
Makuuhuoneet
2
Kylpyhuoneet
1
WC:t
1
Honka-tunniste
50538

Pohjakuvat

Variantit
Wood Haven 69 1A Wood Haven 69 2A
Wood Haven 69 1A floor plan

Starter block heading

Tips for first-time builders

Lorem ipsum dolor sit amet, consectetur adipiscing elit, sed do eiusmod tempor incididunt ut labore et dolore magna.

Read more

Tips for first-time builders

Lorem ipsum dolor sit amet, consectetur adipiscing elit, sed do eiusmod tempor incididunt ut labore et dolore magna.

Read more

Tips for first-time builders

Lorem ipsum dolor sit amet, consectetur adipiscing elit, sed do eiusmod tempor incididunt ut labore et dolore magna.

Read more
pineo-alue-2025-004-1536x1097

Order a free catalog

Explore our collections by browsing the catalog and pick up inspiring ideas for building your own log home or cabin.